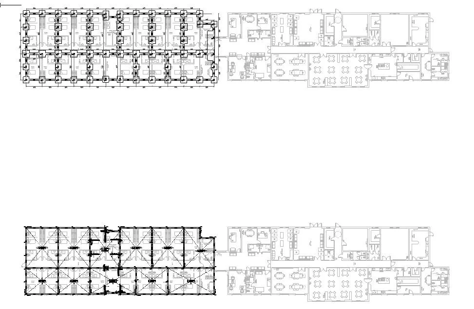
Projetos de Especialidade

Elaboração de projetos de especialidades de Engenharia de obra de Construção de um Lar de 3ª idade, situado em Guiães, Vila Real.

Arquitetura por Artur Fernandes

Anterior
Anterior

Certificação Energética - Conjunto Habitacional - Seixo, Matosinhos

Próximo
Próximo

Projetos de Especialidade - Habitação Multifamiliar, Godim, Peso da Régua